旋轉接頭選型時如果按通道選型你知道怎么選嗎?首先我們要知道你是用在什么設備上的,介質流向和旋轉接頭的作用。根據旋轉接頭按照流經設備回路數量,通??梢苑譃?/span>:單通、雙通、多通路。
單通式:指介質只按一個方向流過旋轉接頭,一般從設備的一端旋轉接頭流入,從設備另一端的旋轉接頭流出;或者介質噴在設備需要冷卻的位置,如機床主軸旋轉接頭。(僅有一個通路,具有將介質引入或輸出功能的旋轉接頭);(如下圖所示)
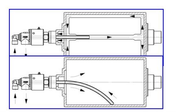
雙通式:指介質從同一個旋轉接頭流入、流出,雙通式旋轉接頭都與虹吸器(內管)相配套使用(旋轉接頭有二個通路,具有同時將介質引入和輸出功能的旋轉接頭)。(如下圖所示)
通常情況下,蒸汽旋轉接頭、水用旋轉接頭、導熱油旋轉接頭都分為單通道和雙通道。
多通路(多向)旋轉接頭: 有三個及以上通路,具有同時將一種或多種介質引入或輸出功能的旋轉接頭。這種類型旋轉接頭通常是根據設備需求情況進行定制,其中以液壓旋轉接頭居多。
旋轉接頭按通道選型你會選了嗎?更多選型問題,歡迎廣大用戶隨時咨詢騰旋,我們將為您解答相關問題,并為您提供系統(tǒng)解決方案。


MR型多通路旋轉接頭(高壓旋轉接頭)
HS-XF080 水用旋轉接頭(金緯專用)
QQS-PT040蒸汽旋轉接頭
MCW6-19SY中央回轉接頭